Nouvelle promotion de 3 logements à Cronay. Magnifique dégagement sur les Alpes. 4.5 et 5.5 pièces dès CHF 815'000.--.
Cronay
Description
Référence:
Promotion_3 logements_Cronay
Pièces:
4.5
Surfaces:
116 m2
Vue:
Campagne
État:
Neuf
Parking:
En sus
Parking obligatoire:
Obligatoire
Description
1 appartement déjà vendu ! Encore 2 à vendre. Le chantier démarre au printemps 2026. Livraison des appartements pour l'été 2027.
Coralie Anker a le plaisir de vous présenter cette nouvelle promotion à Cronay, à seulement 6 km d'Yverdon-les-Bains.
La situation est idéale. Vous profiterez du calme de la campagne et rejoindrez rapidement les axes autoroutiers ainsi que le centre-ville d'Yverdon-les-Bains en moins de 10 minutes.
Les généreuses surfaces habitables des futurs appartements ainsi que le magnifique panorama sur la chaîne des Alpes promettent une qualité de vie des plus agréables.
Cette ancienne ferme, qui sera entièrement rénovée, proposera 3 logements de qualité de 4.5 et 5.5 pièces avec jardin, terrasse ou balcon, à savoir :
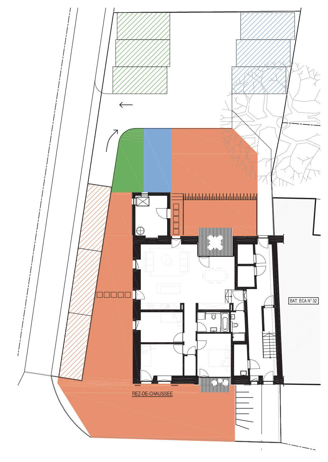
- Rez-de-chaussée : LOT 1 : 4.5 pièces d'environ 105 m2 + cave. Afin de profiter pleinement des extérieurs, cet appartement bénéficiera d'un grand jardin privatif ainsi que 2 terrasses totalisant environ 218 m2. CHF 885'000.--. Vendu !
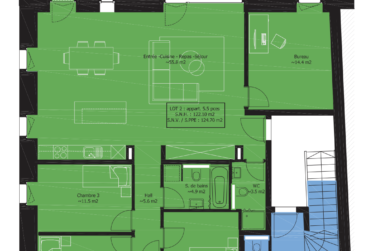
- 1er étage : LOT 2 : 5.5 pièces d'environ 125 m2 + cave. Une grande terrasse de plus de 17 m2 avec vue dégagée sur la chaîne des Alpes complètera ce bien. CHF 905'000.--.
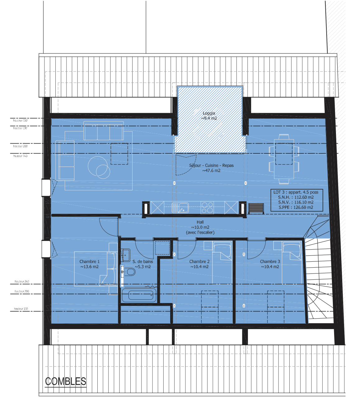
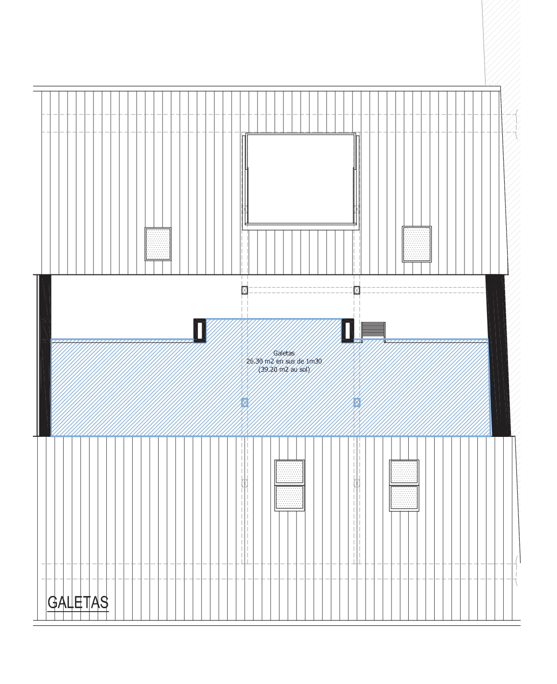
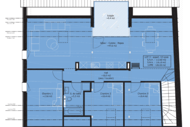
- 1er étage et combles : LOT 3 : 4.5 pièces d'environ 116 m2 + cave et grand galetas privatif. Une jolie loggia d'environ 9.4 m2 ainsi que des poutres apparentes procureront à cet appartement un charme tout particulier. CHF 815'000.--.
Les appartements des étages bénéficieront d'un coin de jardin potager. 3 places de parc par logement (CHF 10'000.-- la place, en sus du prix de vente).
Vous pourrez personnaliser votre logement grâce à des finitions à choix. Budgets à disposition sur simple demande.
Construction aux dernières normes énergétiques pour un confort optimal.
Vente sur plan pour des frais d'achat réduits. Le permis de construire est délivré !
Les amoureux de la nature apprécieront les balades alentours qui offrent un magnifique dégagement sur le Jura ainsi que sur la chaîne des Alpes.
Cronay fait partie de l’Association scolaire intercommunal d’Yvonand. Des transports scolaires sont organisés. Le collège de Cronay accueille 2 classes, de la 3P à la 6P.
L’accueil de jour pour la petite enfance est géré par le réseau Yvonand-Menthue (RYMAJE).
Dossier complet sur demande.
N’hésitez pas à me contacter, je me tiens à votre entière disposition pour toute information complémentaire que vous pourriez souhaiter.
Coralie Anker Immobilier
Tél. 079/429.16.53
Mail : info@ca-immobilier.ch
Adresse
Grand-Borgeaud
1406 Cronay
Sur la carte
CHF 815'000.-
Agent immobilier
Coralie Anker
E-mail
info@ca-immobilier.ch
Téléphone
+41 79 429 16 53
Contactez le courtier

